【物件番号372号】坂梨の物件(1LDK) 2階ロフト付きで即入居可能な物件!
物件の概要
| 登録番号 | 第372号 |
|---|---|
| 物件住所 | 阿蘇市一の宮町坂梨3295-11 |
| 価格 | 売却 650万円 |
| 家屋状態 | 良好 |
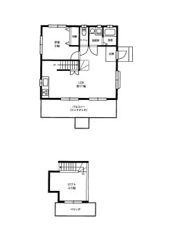
| 面積 | 土地:353㎡、建物:1階49.68㎡、2階ロフト11.59㎡ |
| 構造/間取り | 木造/1LDK(LDK17帖、洋室6帖、ロフト4.5帖、浴室、トイレ、洗面所、ウッドデッキ) |
| 築年数 | 築15年 補修は不要(入居者負担) |
設備状況
| 電気 | 引き込み済 |
|---|---|
| ガス | プロパンガス |
| 風呂 | ガス |
| 水道 | 簡易水道 |
| 下水道 | 浄化槽 |
| トイレ | 水洗,洋式 |
| インターネット | 光引き込み済み(契約手続きは必要) |
| その他設備 | 車庫、物置、庭 |
主要施設へのアクセス
駅:3.6km
市役所:5.0km
病院:6.2km
消防署:7.0km
警察署:7.0km
小学校:4.9km
中学校:4.9km
スーパー:4.5km
ホームセンター:3.5km
その他特記すべき設備や物件の特徴等
1.管理費(水道代込み)として、年額30,000円が必要です。入居時に、入居月から年度末までの分を一括して管理組合へお支払いが必要となります。
2.即入居可です。
3.景観抜群
4.テレビアンテナ、BSアンテナ、冷蔵庫、エアコン、テーブル、収納棚、その他込(必要・不要は相談可)
5.カーポート及び物置は2020年に設置しています。2台駐車可能です。
6.阿蘇市街地まで近く、永住・別荘どちらでも利用可◯。
7.住居内のクロスには、角部分等に一部隙間ができています。
8.ウッドデッキやカーポートの雨樋は、適宜メンテナンスが必要です。
9.その他、詳細はお問い合わせください。
※周辺の情報も含め、予め防災情報をご確認ください※
・阿蘇市ハザードマップ
(全体)
https://www.city.aso.kumamoto.jp/disaster/disaster_prevention_map/disaster_prevention_map_2020/
(宮地・坂梨・坂の上・立塚・横堀)
https://www.city.aso.kumamoto.jp/files/uploads/2015/06/bousaimap11_2020_31-32.pdf
・各種防災マップ
https://www.city.aso.kumamoto.jp/disaster/disaster_prevention_map/
物件の地図
この物件に関するお問い合わせ先
株式会社 田上建設
TEL 0967-32-0779
※阿蘇市空き家バンクを見てお電話された旨お伝えください。

























